 來源:遠東泵業 發布日期
                2019-06-24 11:07 瀏覽:-
來源:遠東泵業 發布日期
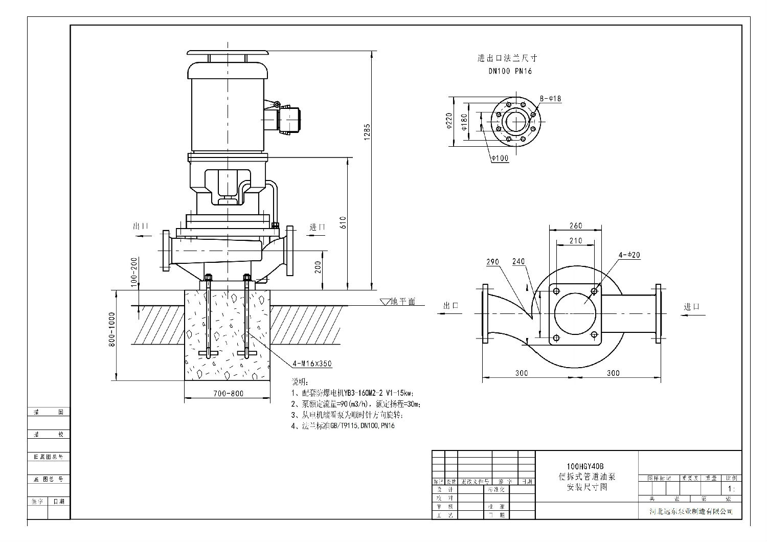
                2019-06-24 11:07 瀏覽:-100HGY40B立式管道油泵 本結構適用于輸送不含固體顆粒的介質,如:汽油,柴油,燃料油,煤油。溫度為-20--120℃的油類.所輸送的油類介質溫度T<120℃時,可選擇高溫型或者化工型。
100HGY40B立式管道油泵

100HGY40B產品特點:
1、泵為立式結構,進出口口徑相同,且位于同一線上,可象閥門一樣安裝于管路之中,外觀緊湊美觀,占地面積小,建筑投入低,如加上防護罩則可置于戶外使用。
2、葉輪直接安裝在電機的加長軸上,軸向尺寸短,結構緊湊,泵與電機軸承配置合理,能有效地平衡泵運轉產生的徑向和軸向負荷,從而保證了泵的運行平衡,振動小、噪音低。
3、軸封采用機械密封或機械密封組合,采用進口鈦合金密封環、中型耐高溫機械密封和采用硬質合鑫材質,耐磨密封,能有效地處長機械密封的使用壽命。
4、安裝檢修方便,無需拆動管路系統,只要卸下泵聯體座螺母即可抽出全部轉子部件。
5、可根據使用要求即流量和揚程的需要采用泵的串、并聯運行方式。
6、可根據管路布置的要求采用泵的豎式和橫式安裝。
100HGY40B工作條件:
1、吸入壓力≤1.0MPa,或泵系統工作壓力≤1.6MPa,即泵吸入品壓力+泵揚程≤1.6MPa,泵靜壓試驗壓力為2.5MPa,訂貨時請注明系統工作壓力。泵系統工作壓力大于1.6MPa時應在訂貨時另行提出,以便在制造時泵的過流部分和聯接部分采用鑄鋼材料。
2、環境溫度<40℃,相對濕度<95%。
3、所輸送介質中固體顆粒體積含量不超過單位體積的0.1%,粒度<0.2mm。
注:如使用介質為帶有細小顆粒,請在訂貨時說明,以便廠家采用耐磨式機械密封。

遠東泵業30多年來一直堅持為客戶創造價值!
我們在努力了解您的需求,遠東泵業提供給您的不僅僅是產品,還有的流體輸送解決方案。為你解決流體輸送的難題,讓你省心又省力!如果有任何關于流體輸送泵的疑問,請立即撥打遠東泵業免費咨詢熱線:020-82375311,我們會為您提供貼心的服務!
 全國服務熱線:020-82375311
全國服務熱線:020-82375311
聯系電話:020-82375311
傳真:020-82386622
聯系QQ:2853715911
公司地址:廣州市黃埔區黃埔東路621號
【本文標簽】:100HGY40B 100HGY40A 立式管道油泵
【責任編輯】:遠東泵業 版權所有:http://www.businesstianjin.com.cn/轉載請注明出處